中南标11zj501内墙装修及配件图集 pdf超清版
http://www.100md.com
2016年6月15日
![]() |
| 第1页 |
![]() |
| 第2页 |
![]() |
| 第7页 |
![]() |
| 第12页 |
![]() |
| 第20页 |
![]() |
| 第39页 |
![]() |
| 11zj501图集 |
![]() |
| 11zj501图集 |
![]() |
| 中南标11zj501内墙装修及配件图集 |
![]() |
| 11zj501图集 |
参见附件(5563KB,42页)。
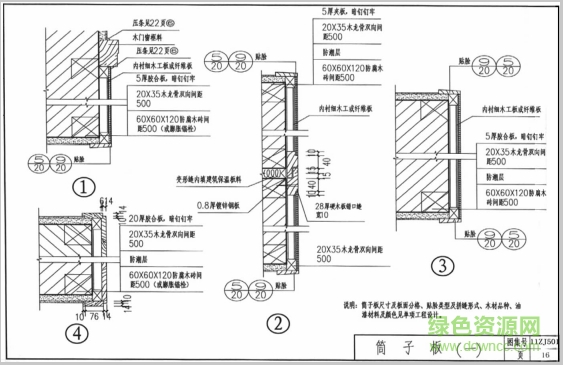
中南标11zj501图集主要介绍了内墙装修构造做法和内墙装修配件构造详图两大类,是中南地区内墙装修及配件的参照标准图集,由湖南省建筑设计院编制。赶快下载学习吧!
11zj501图集介绍
适用范围
本图集适用于新建、改建、扩建的民用建筑和工业辅助建筑常用内墙装修构造。
设计内容
本图集分两个部分:第一部分是内墙装修构造做法,包括踢脚、墙裙、不同材料墙面饰面做法、石材接缝、墙体转角护角等;第二部分是内墙装修配件构造详图,包括壁柜及吊柜、内窗台板、窗帘盒以及住宅装饰墙面、凸窗护栏等做法。
11zj501图集样张
相关资料1:
- 《装修巧省钱系列.厨房》.周翔.彩印版.pdf
- 装修选材一本就够畅销升级版.pdf
- 装修设计解剖书电子版
- 《居室装修必备解毒植物》.周涤.扫描版.pdf
- 家的书:写给年轻人的租房买房装修全攻略.pdf
- gb50210-2011建筑装饰装修工程质量验收规范 word版
- 13J502-3内装修/楼(地)面装修图集 pdf高清免费版
- 08bj4-1 内装修-综合图集
- 河南12yj6 外装修图集
- [家庭装修最易忽视的299个盲点].(北京旭日工作室).(第1版).pdf
- 《装修日记1:装修前不看会哭的50堂课》.搜狐家居.扫描版.pdf
- 《家装无忧:二手房装修》扫描版.pdf
- 98ZJ501内墙装修及配件图集 pdf高清电子版
- 甘02J04-4 内装修(伸缩缝).pdf
- 《装修巧省钱系列.客厅·餐厅》.周翔.全彩版.pdf
相关资料2:
- 02J916-2住宅排气道图集(二) pdf高清电子版-复合式垂直集中排气系统
- 城市漫步守护星008说明书
- 苏s01-2012给水排水图集 pdf高清电子版
- 08bj6-1地下工程防水
- 08K507-1管道与设备绝热-保温图集 pdf高清电子版
- 2006浙g30烧结多孔砖房屋结构构造图集 pdf高清电子版
- 川07j01 工程做法图集
- 建筑结构静力计算手册第二版 pdf高清电子版
- 川07j123 中空玻化微珠无机保温砂浆构造
- 07K133薄钢板法兰风管制作与安装图集 pdf高清电子版
- 07CJ03-1轻钢龙骨石膏板隔墙吊顶图集 pdf高清电子版
- 02S502双层井盖图集 pdf高清电子版
- 眉山地图全图高清版 jpg格式
- 赣04j101变形缝
- 07cj12节能铝合金门窗蓝光系列图集 pdf高清电子版









