05yj2图集地下室防水工程标准图集 pdf高清电子版
http://www.100md.com
2016年6月17日
![]() |
| 第1页 |
![]() |
| 第2页 |
![]() |
| 第9页 |
![]() |
| 第12页 |
![]() |
| 第25页 |
![]() |
| 第36页 |
![]() |
| 第51页 |
![]() |
| 05yj2图集地下室防水工程标准图集 |
![]() |
![]() |
![]() |
参见附件(14454KB,65页)。
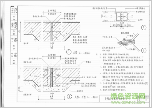
05yj2图集是河南地区的地下室防水工程建设参照图集,属于05系列工程建设标准设计图集之一,供建筑设计、施工等人员使用。快下载吧!
05yj2图集样张
使用说明
本图集未pdf格式,使用pdf阅读器或者wps打开即可观看,如果你电脑中没有安装相关软件,请先在本站下载!
相关资料1:
- 《生物反应工程原理》.index.pdf
- 图解安装工程工程量清单计算手册(第2版).pdf
- 05R502燃气工程设计施工图集 pdf高清电子版
- 人体复原工程-吴清忠.pdf
- 数据中心综合监控系统工程技术标准.pdf
- 注册岩土工程师基础教材pdf
- 12ys8排水工程图集 pdf高清电子版
- 《网络工程师考试同步辅导:考点串讲、真题详解与强化训练》(第3版).pdf
- Web开发实战(云计算工程师系列) 中文.pdf
- 工程数学线性代数第六版同济大学版.pdf
- DL/T5295-2013 火电工程调整试运质量检验及评定标准 pdf电子版
- 陕09s6消防工程图集 pdf高清电子版
- 软件工程实践者的研究方法(原书第7版).pdf
- 工程经济学第三版 pdf 高清扫描版
- jgj1262015外墙饰面砖工程施工及验收规程 pdf最新版
相关资料2:
- 新12g06预应力混凝土空心板图集 pdf高清电子版
- Oracle Database 11g RAC手册 第2版.pdf
- 山东l96j901室内装修图集 pdf高清电子版
- 小白素食记录 电子书
- 黔05j905-zcf住宅厨房卫生间排风道图集 pdf高清电子版-附宾馆卫生间排风道
- 04S531-1湿陷性黄土地区给水排水管道基础及接口图集 pdf高清电子版
- 第二届中金所杯题库答案 pdf高清版
- 博朗9030s自动剃须刀中文说明书 pdf高清电子版
- 99浙j5 pvc塑料门窗图集 pdf高清电子版
- 05s1卫生设备安装工程图集 pdf电子版
- 一页纸项目管理电子版 pdf高清版
- gb50067-2014汽车库/修车库/停车场设计防火规范正式版 pdf扫描版
- 同济高等数学第六版下册习题全解指南.pdf
- 概率论与数理统计习题全解指南(第4章).pdf
- 西南11j302地下建筑防水构造图集 pdf高清电子版










