07j902-3医疗建筑图集(卫生间/淋浴间/洗池) pdf高清电子版
http://www.100md.com
2016年6月23日
![]() |
| 第1页 |
![]() |
| 第2页 |
![]() |
| 第7页 |
![]() |
| 第13页 |
![]() |
| 第25页 |
![]() |
| 第33页 |
![]() |
| 第58页 |
![]() |
| 第82页 |
![]() |
| 07j902 |
![]() |
| 07j902 |
![]() |
| 07j902-3医疗建筑图集(卫生间/淋浴间/洗池) |
![]() |
| 07j902 |
参见附件(22594KB,105页)。
07j902 3图集主要介绍了医疗类型的卫生间、淋浴间和洗池的构造做法,是建造医疗卫生间、淋浴间、洗池的参照图集,供建筑设计、施工、监理人员使用。有需要的,快来下载吧!
07j902 3图集介绍
本图集适用于新建、改建、扩建的医疗建筑,使用对象主要为建筑师、室内设计师、施工、监理等相关领域的从业人员。主要内容:图集主要包括医疗建筑中常用的卫生间、淋浴间、整体卫浴间、部分常用的洗池以及部分排水附件的相关构造。特点:图集提供了多种规格的各类卫生间、淋浴间、洗池及节点安装详图,并附彩色图片,可以直接选用。
07j902 3图集目录
目录1
总说明4
卫生间隔断示例6
整体抗菌卫浴间示例7
卫生间洁具及安全抓杆布置示例8
感应水嘴、冲水阀、洁具安装示例9
洗池布置示例10
卫生间
卫生间设计选用说明W1
卫生间平面布置示意图W3
A型无性别卫生间布置示意图W5
B型无性别卫生间布置示意图W6
C型无性别卫生间布置示意图W7
A型无障碍厕位布置示意图W8
B型无障碍厕位布置示意图W9
C型无障碍厕位布置示意图W10
D型无障碍厕位布置示意图W11
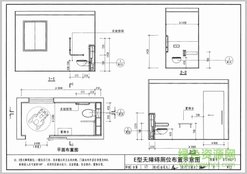
E型无障碍厕位布置示意图W12
F型无障碍厕位布置示意图W13
儿科普通门诊卫生间布置示意图W14
儿科隔离卫生间布置示意图W15
儿科卫生间安全抓杆示例W16
洗手盆安全抓杆示例W17
坐便器安全抓杆示例W19
小便器安全抓杆示例W21
安全抓杆安装构造W22
立柱式卫生间隔断示例及安装构造W24
顶柱式卫生间隔断示例及安装构造W26
地脚式卫生间隔断示例及安装构造W27
悬挂式卫生间隔断示例及安装构造W28
小便斗隔断示例及安装构造W29
坐便器冲洗阀安装构造W31
小便器 蹲便器冲洗阀安装构造W33
坐便器支架构件W34
冲洗阀构件W35
无水封直通式地漏、铸铁有水封带网框地漏安装构造W36
直埋式地漏、塑料多通道地漏安装构造W37
塑料有水封直埋式多通道地漏安装构造W38
脏物捕集器、毛发聚集器(悬挂式)安装构造W39
婴儿打理台安装构造W40
卫生纸盒、挂衣钩安装构造W41
烘手器、挂衣钩安装构造W42
卫生间配件安装构造W43
后排水式坐便器支架构造W44
后排水式洗手盆小便斗安装构造W45
淋浴间
淋浴间设计选用说明L1
无性别淋浴间平面L3
A型无性别淋浴间布置示意图L4
B型无性别淋浴间布置示意图L5
C型无性别淋浴间布置示意图L6
D型无性别淋浴间布置示意图L7
E型无性别淋浴间布置示意图L8
F型无性别淋浴间布置示意图L9
儿童淋浴间布置示意图L10
A型无障碍淋浴间布置示意图L11
B型无障碍淋浴间布置示意图L12
淋浴间安全抓杆示例及安装构造L13
公共淋浴间L14
浴巾架、肥皂盒、澡液盒安装构造L15
毛巾杆、毛巾环、浴帘杆、淋浴喷头架安装构造L16
专用整体卫浴间
整体抗菌卫浴间设计选用说明Z1
专用整体卫浴间构造Z2
病房改造整体卫浴间构造Z5
洗池
洗池设计选用说明X1
单盆不锈钢医用清洗池X2
双盆不锈钢医用清洗地X3
单盆双龙头不锈钢医用清洗池X4
医用水洗台构造X5
普通洗池X6
普通陶瓷成品洗手池X7
玻璃板洗手池构造X8
医用人造石整体刷手池X9
抑菌人造石洗婴池X10
普通洗婴池X12
普通石膏池及石膏存储池X13
医用成品不锈钢石膏池构造X14
洗片池X15
倒便池X16
小儿科洗手池X17
胃镜冲洗池X18
动物解剖台X19
普通洗试管池X20
化验室试管池(侧置水槽台、带滴水架)X21
拖布池X22
不锈钢医用清洗池安装构造X23
洗池防溅板构造X24
相关技术资料
07j902 3图集样张
附件资料:
相关资料1:
- 06j121-3外墙外保温建筑构造图集(三) pdf高清电子版
- 13BJ2-12建筑外保温(节能75%)下.pdf
- 07CJ10聚合物水泥防水涂料建筑构造图集 pdf高清电子版-RG防水涂料
- 10ZJ105 外墙保温隔热系统建筑构造
- gb50210-2011建筑装饰装修工程质量验收规范 word版
- 08CJ13钢结构镶嵌ASA板节能建筑构造图集 pdf高清电子版
- 07SG111-1建筑结构加固施工图设计表示方法图集 pdf高清电子版
- 中国古代建筑历史图说.pdf
- 16g617 16j107 夹心保温墙建筑与结构构造 图集 pdf免费版
- 《建筑电工》孟文璐.epub
- 赣09zj208图集 YL自粘防水卷材、涂膜建筑防水构造
- 中南建筑图集98ZJ901室外装修及配件 pdf高清电子版
- 《基于BIM的Revit建筑与结构设计案例实战》.pdf
- L92J601木门(山东省建筑标准图集) pdf版
- jgj62-2014 旅馆建筑设计规范pdf 免费完整版
相关资料2:
- google sre中文版pdf 高清电子版
- tsg q7015 2016电子版 起重机械定期检验规则最新版-微盘
- 高中文言文全解一本通
- 奇妙的物理学电子书
- 忆江南ppt课件
- quartusii使用教程完整版 中文电子版
- 05j3-1外墙外保温图集 pdf高清电子版
- gb50310-2016 pdf免费电子版
- 拜厄钢琴基本教程%28上下册%29(少儿教学版).pdf
- unity游戏开发入门经典 pdf 电子版-附配套材料
- 凌度hs650b行车记录仪使用说明书 pdf高清版
- 王泽鉴:民法物权之1.pdf
- 华为荣耀6 plus电信版使用说明书 PDF电子版
- 新闻学概论李良荣 pdf
- gb 50591-2010 洁净室施工及验收规范
/07J902-3.jpg)
/07J902-3_1.jpg)
/07J902-3_2.jpg)
/07J902-3_3.jpg)
/07J902-3_4.jpg)
/07J902-3_5.jpg)
/07J902-3_6.jpg)
/07J902-3_7.jpg)



